0694 43 88 22
06 94 43 88 22
6 allée de l'université de Yale 97300 Cayenne

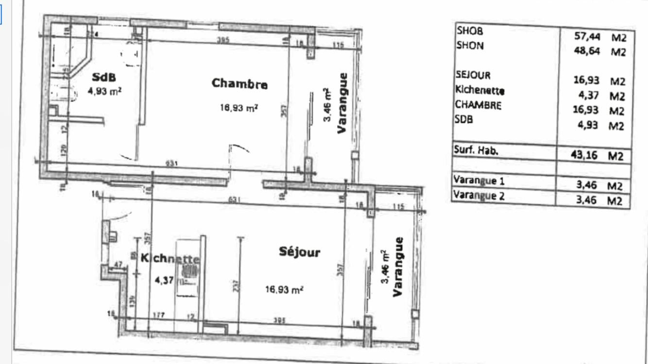
Appartement T2 secteur Baduel Superficie 43,16 M² + 2 balcons de 3,46 m² Résidence sécurisée

< Retour

Appartement 43.16 m² - 2 Pièces - Cayenne (97300)

  • Loyer
  • 730 € CC*
  • Ref M25
gallery loader
Partager cette offre
+1
Description de l'offre

Cet appartement de type 2 d'une superficie habitable de 43.16 m2 au sein d'une copropriété de 48 logement sur deux bâtiments est très bien situé sur la route de Baduel. Il comprend un séjour, une cuisine , une chambre climatisée , deux balcons et une une place de parking. Il est disponible immédiatement dans cette résidence sécurisée avec portail et digicode. Loyer mensuel : 690 euros + 40 euros de charges Honoraire à la charge du locataire : 561.08 euros dont 129,48 euros pour l'état des lieux. Dépôt de garantie : 690 euros Disponibilité Immédiate . Ref mandat M25 Visitez avec votre conseiller location Km Immo au 0694 438822.

Descriptif du bien

Code postal 97300


Surface habitable (m²) 43,16 m²


Surface loi Boutin (m²) 43,16 m²


Nombre de chambre(s) 1


Nombre de pièces 2


Meublé Non renseigné


Etage 1


Nombre de niveaux 1


Ascenseur NON


Nb de salle de bains 1


Nb de salle d'eau 1


Nombre de parking 1


Année de construction 2011


Copropriété NON


Loyer CC* / mois 730 €


Honoraires TTC charge locataire 431,60 €


Dont état des lieux 129,48 €


Dépôt de garantie TTC 690 €


Charges locatives (Previsionnelles mensuelles les avec regularisation annuelle) 40 €


Taxe d'habitation 600 €


Diagnostics de performance énergétique

DPE
DPE
Cette annonce vous intéresse ?
* Champs obligatoires

* : Les informations recueillies sur ce formulaire sont enregistrées dans un fichier informatisé par La Boite Immo agissant comme Sous-traitant du traitement pour la gestion de la clientèle/prospects de l'Agence / du Réseau qui reste Responsable du Traitement de vos Données personnelles. La base légale du traitement repose sur l'intérêt légitime de l'Agence / du Réseau. Elles sont conservées jusqu'à demande de suppression et sont destinées à l'Agence / au Réseau. Conformément à la loi « informatique et libertés », vous disposez des droits d’accès, de rectification, d’effacement, d’opposition, de limitation et de portabilité de vos données. Vous pouvez retirer votre consentement à tout moment en contactant directement l’Agence / Le Réseau. Consultez le site https://cnil.fr/fr pour plus d’informations sur vos droits. Si vous estimez, après avoir contacté l'Agence / le Réseau, que vos droits « Informatique et Libertés » ne sont pas respectés, vous pouvez adresser une réclamation à la CNIL. Nous vous informons de l’existence de la liste d'opposition au démarchage téléphonique « Bloctel », sur laquelle vous pouvez vous inscrire ici : https://www.bloctel.gouv.fr Dans le cadre de la protection des Données personnelles, nous vous invitons à ne pas inscrire de Données sensibles dans le champ de saisie libre.
Ce site est protégé par reCAPTCHA, les Politiques de Confidentialité et les Conditions d'Utilisation de Google s'appliquent.

* CC : Charges comprises