0694 43 88 22
06 94 43 88 22
6 allée de l'université de Yale 97300 Cayenne

Appartement t2 Superficie 43 m2 Terrasse 13 m2 proximité Hôpital

< Retour

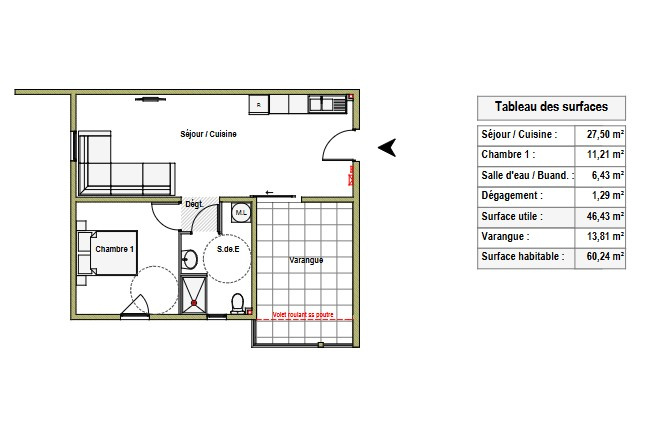
Appartement 46.43 m² - 2 Pièces - Le Lamentin (97232)

  • Prix
  • 158 000
  • Ref 4
gallery loader
Partager cette offre
+1
Description de l'offre

Retrouvez cet appartement t2 dans une résidence récente sur le quartier Bois Carré au Lamentin, au calme dans une impasse et en bordure de forêt, cet appartement de type 2 est situé au sein d'une résidence de 2020 avec ascenseur. Ces dimensions sont généreuses pour un appartement T2 d'une superficie totale habitable de 43 m2, un grand salon de 27 m2, une grande chambre de 12 m2 et une agréable terrasse de 13 m2 avec une place de parking privative. Sa situation géographique est exceptionnelle, proche de l'hôpital, du centre ville du lamentin, des commerces, restaurants et services. Copropriété : oui Nombre de lots : 82 Procédure diligentés syndyc : non Charges annuelles : 1500 euros Taxe foncière : 1300 euros Honoraire à la charge du vendeur. Référence mandat : 4 Contactez votre conseiller Km immobilier au 0694 357860 pour visiter rapidement ce bien exceptionnel.

Descriptif du bien

Code postal 97232


Surface habitable (m²) 46,43 m²


Surface loi Carrez (m²) 46 m²


Nombre de chambre(s) 1


Nombre de pièces 2


Nombre de niveaux 1


Nb de salle d'eau 1


Cuisine AMERICAINE


Type de cuisine SEMI-EQUIPEE


Terrasse OUI


Exposition SUD-EST


Année de construction 2019


Copropriété OUI


nombre de lots 30


plan de sauvegarde NON


statut du syndic pas de procédure en cours


Prix de vente honoraires TTC inclus 158 000 €


Diagnostics de performance énergétique

DPE
DPE
Cette annonce vous intéresse ?
* Champs obligatoires

* : Les informations recueillies sur ce formulaire sont enregistrées dans un fichier informatisé par La Boite Immo agissant comme Sous-traitant du traitement pour la gestion de la clientèle/prospects de l'Agence / du Réseau qui reste Responsable du Traitement de vos Données personnelles. La base légale du traitement repose sur l'intérêt légitime de l'Agence / du Réseau. Elles sont conservées jusqu'à demande de suppression et sont destinées à l'Agence / au Réseau. Conformément à la loi « informatique et libertés », vous disposez des droits d’accès, de rectification, d’effacement, d’opposition, de limitation et de portabilité de vos données. Vous pouvez retirer votre consentement à tout moment en contactant directement l’Agence / Le Réseau. Consultez le site https://cnil.fr/fr pour plus d’informations sur vos droits. Si vous estimez, après avoir contacté l'Agence / le Réseau, que vos droits « Informatique et Libertés » ne sont pas respectés, vous pouvez adresser une réclamation à la CNIL. Nous vous informons de l’existence de la liste d'opposition au démarchage téléphonique « Bloctel », sur laquelle vous pouvez vous inscrire ici : https://www.bloctel.gouv.fr Dans le cadre de la protection des Données personnelles, nous vous invitons à ne pas inscrire de Données sensibles dans le champ de saisie libre.
Ce site est protégé par reCAPTCHA, les Politiques de Confidentialité et les Conditions d'Utilisation de Google s'appliquent.